CDU begrüßt geplanten ÖPNV- Knotenpunkt in Surendorf

27.01.2021

Zum 01. Januar 2021 wird der Kreis Rendsburg-Eckernförde den Öffentlichen Personennahverkehr in einen Integrierten Taktfahrplan überführen. Damit wird es erstmals möglich sein, sich innerhalb des Kreises und ohne große Wartezeiten an den Umsteige- / Knotenpunkten mit dem Bus zu bewegen.

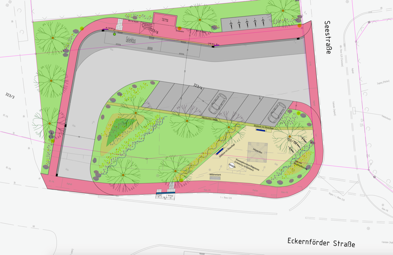
Ein solcher Knotenpunkt entsteht in Surendorf Dort werden Umsteigemöglichkeiten der drei Linien Surendorf - Kiel, Surendorf - Gettorf und Surendorf - Eckernförde eingerichtet. Dazu müssen die Busse aller drei Linien aber auch in Surendorf wenden.

Um dieses sicherzustellen, wird die sogenannte „Pfingstbaumwiese“ an der Einmündung Seestraße / Eckernförder Straße umgebaut.

Die Planungen sind bereits nahezu abgeschlossen, leider hat sich dieses Projekt durch die Corona-Einschränkungen verzögert. Der Umbau soll schnellstmöglich in 2021 umgesetzt und dort ein moderner ÖPNV-Knoten mit Mobilitätsstation eingerichtet werden.

Wir begrüßen dieses Projekt ausdrücklich. Der Kreuzungsbereich oben in Surendorf wird durch Bus, Dörpsmobil, Mitfahrbank, einer digitalen Infostele und ansprechender Bepflanzung deutlich attraktiver, moderner und übersichtlicher. In Zeiten einer angestrebten Verkehrswende ist das genau richtig.